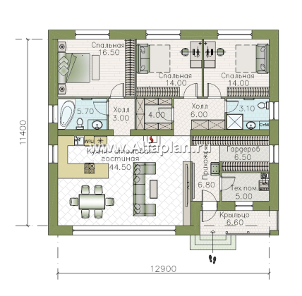
751A «Соблазн» - проект одноэтажного дома, 3 спальни, панорамное остекление, отличная планировка

Автор проекта: В. Тарасов
  • Общая площадь дома:132.4 м²
  • Площадь отапливаемых помещений:129.1 м²
Стоимость проекта:
  • Архитектурно-строительные чертежи (АС)    41 700 ₽
  • Внутренние инженерные системы (ИС) отопление, водопровод, канализация, электрооборудование    По дог.
  • Электронная копия в формате PDF    7 000 ₽
  • Строительный паспорт проекта    3 500 ₽
  • Разбивочный план вашего участка    7 000 ₽
  • Дополнительная копия проекта    4 000 ₽
  • При покупке проекта дома можно выбрать три бесплатных опции (проекта), посмотреть проекты)"    1 ₽
  • Доставка по России бесплатно, в страны СНГ    По дог.
  • Вариант фундамента: сборный из ж/б блоков глубиной заложения 1,76м    По дог.
Заказать проектПоложить в мои желания
Спасибо за обращение к нам, в ближайшее время мы вам ответим
Связаться через:

Вы можете доверить нам проект дома!  

Состав проекта домавидеообзор проектной документации.

- Готовые проекты домов не предназначены для строительства в СЕЙСМИЧЕСКИ АКТИВНЫХ РАЙОНАХ, а фундаменты - в условиях ВЕЧНОЙ МЕРЗЛОТЫ,

- Готовые проекты домов требуют привязки к конкретному участку строительства. В случае применения фундамента на сваях необходимы инженерно-геологические изыскания и привязка фундамента.

- Стоимость внесения изменений в проект дома рассчитывается индивидуально, в зависимости от сложности и объема работ.

Общая площадь дома 132.4 м²

«Соблазн» - проект одноэтажного дома, 3 спальни, панорамное остекление, отличная планировка - технические характеристики

Тип фундамента монолитная ж/б плита
Тип наружных стен кирпич/газо(пено)бетонные блоки
Тип внутренних несущих стен кирпич/газо(пено)бетонные блоки
Тип перекрытий по деревянным балкам
Тип кровли натуральная черепица/битумная черепица
Наружная отделка стен лицевой кирпич, штукатурка, вагонка
Наружная отделка цоколя облицовочный камень
Гараж Без гаража
Высота дома от пола 1-го этажа 5.1 м
Высота 1-го этажа от пола 1-го этажа 3 м
Ширина 14 м
Длина 13 м
Утеплитель минеральная вата
Материал окон из ПВХ профилей/Защитные роллеты ALUTECH (реклама: ООО "Алютех-М")

Описание проекта

«Соблазн» - проект одноэтажного дома, 3 спальни, панорамное остекление, отличная планировка

Комментарии 0

Об этом проекте ещё никто не писал.
Задай вопрос или поделись своим мнением!
Нам не всё равно

Добавить комментарий
Добавление комментария