677A+296B «Амур» - проект трехэтажного дома, с гаражом в цоколе и с сауной, с двусветной гостиной, с бассейном

Автор проекта: В. Тарасов
  • Общая площадь дома:426.9 м²
  • Площадь отапливаемых помещений:421.5 м²
Заказать проектПоложить в мои желания
Спасибо за обращение к нам, в ближайшее время мы вам ответим
Связаться через:

Компоненты проекта

Вы можете доверить нам проект дома!  

Состав проекта домавидеообзор проектной документации.

- Готовые проекты домов не предназначены для строительства в СЕЙСМИЧЕСКИ АКТИВНЫХ РАЙОНАХ, а фундаменты - в условиях ВЕЧНОЙ МЕРЗЛОТЫ,

- Готовые проекты домов требуют привязки к конкретному участку строительства. В случае применения фундамента на сваях необходимы инженерно-геологические изыскания и привязка фундамента.

- Стоимость внесения изменений в проект дома рассчитывается индивидуально, в зависимости от сложности и объема работ.

Описание проекта

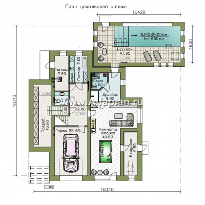
Современный особняк отличается сочетанием внешней презентабельности и повышенным уровнем комфорта. Проектом предусмотрены три этажа и чердак. Нижний, цокольный этаж включает в себя комфортабельную зону отдыха с сауной и бильярдом, теплый гараж на один автомобиль, постирочную, кладовые и техническое помещение. Также есть спуск в винный погреб. Зона отдыха в доме непосредственно связана с пристроенным зданием бассейна скиммерного типа, который имеет собственный выход во двор.


Первый этаж - традиционная зона для общения семьи. Для досуга и приема гостей в распоряжении хозяев дома имеется просторная гостиная, столовая и кухня. Часть гостиной в эркере является двусветным пространством. На этаже также расположены кабинет и санзуел. Вход в дом осуществляется через тамбур и прихожую, оборудованную гардеробом. Из кухни есть выход на просторную террасу, которая расположена на плоской кровле бассейна. Половина террасы под перголой, другая половина - открытая.


На втором этаже находятся три просторные спальные комнаты и ванная. Две смежные спальни имеют выходы на остекленную лоджию. С широкого балкона холла открывается вид в двусветное пространство гостиной.

Комментарии 0

Об этом проекте ещё никто не писал.
Задай вопрос или поделись своим мнением!
Нам не всё равно

Добавить комментарий
Добавление комментария

Коллекции с этим проектом